Bifamiliare in vendita

Scandiano, Via Mazzalasino - Iano
€ 550.000
Prezzo aggiornato
7 locali 7 locali
431 Mq 431 Mq
4 bagni 4 bagni

Bifamiliare in vendita

Scandiano, Via Mazzalasino - Iano

Descrizione annuncio

CARATTERISTICHE:

Proponiamo in vendita a Iano, villa bifamiliare con cortile, porticato e taverna

COSA SAPERE SULL’IMMOBILE:

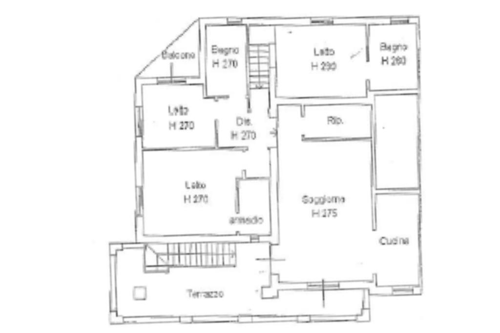
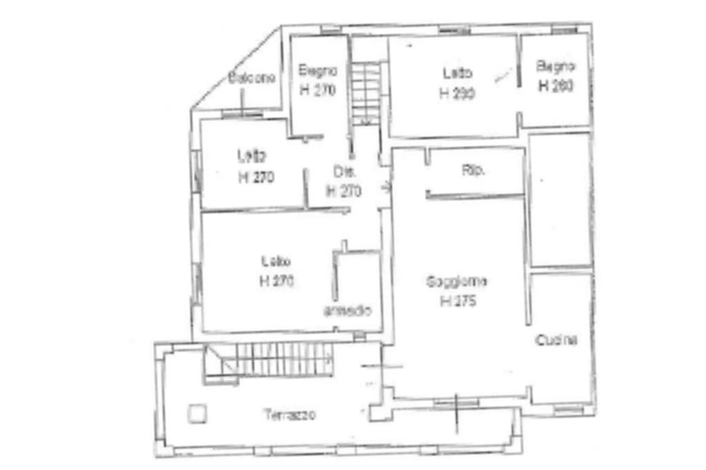
L’immobile è composto da 2 soluzioni immobiliari indipendenti.

La prima unità immobiliare vanta un comodo accesso diretto con scala che consente di arrivare al terrazzo dove è presente la porta d’ingresso principale. Appena entrati troviamo il soggiorno, ampio e luminoso dove è presente l’angolo cottura. Proseguendo verso la zona notte troviamo le 3 camere da letto, di cui 1 di esse con bagno privato, un'altra con cabina armadio. Ulteriore bagno a completare l’abitazione.

La seconda abitazione è composta da ingresso dove si trovano una cucina abitabile, una camera da letto, disimpegno e bagno. Scendendo la prima rampa di scale si raggiungono la taverna e la cantina che offrono uno spazio in più all’interno dell’abitazione, ideale per organizzare cene in famiglia o con ospiti. Tornando al piano terra e proseguendo verso il primo piano troviamo un altro bagno e una stanza polivalente. Al secondo e ultimo piano è stato ricavato un altro appartamento, che è raggiungibile solo internamente dalla struttura, composto da soggiorno con angolo cottura, un terrazzino panoramico, 1 camera da letto e una soffitta.

Completa la proprietà un piccolo balcone che guarda a sud-ovest.

L’accesso al cortile con la propria vettura è agevolato dalla presenza di un cancello carraio automatico dal quale si entra direttamente sulla pavimentazione composta da autobloccanti sui quali è possibile sostare.

OPPORTUNITA’:

Ideale per una famiglia numerosa che cerca una soluzione immobiliare di ampie metrature o per più famiglie che vogliono vivere vicino.

Mostra tutto

Nelle vicinanze

Trasporto pubblico Trasporto pubblico
Scandiano - Ubersetto
Scandiano - Ubersetto
1,8 Km
Via Giuseppe Mazzini
Via Giuseppe Mazzini
2,5 Km
Pratissolo
Pratissolo
3,0 Km
Scuole Scuole
Scuola Elementare la Rocca
2,3 Km
Scuole dell'infanzia Statale
2,3 Km
Scuola Primaria Pratissolo
2,3 Km
Scuole Elementare Lazzaro Spallanzani
2,4 Km
Asilo Nido Comunale Leoni
2,4 Km
Farmacia Farmacia
Farmacia Comunale Ventoso
1,9 Km
Farmacia Spallanzani
2,5 Km
Farmacia Fiorentini
2,6 Km
Ospedali Ospedali
Ospedale Cesare Magati
2,8 Km
Supermercati Supermercati
Supermercati
2,1 Km
Conad Boiardo
2,1 Km
Conad Primavera
2,8 Km
Negozi Negozi
Forno Gabrielli
2,2 Km
OVS Kids
2,3 Km
Sfumature di Grano
2,3 Km
Spazio Shoreditch
2,4 Km
Extrà
2,4 Km
Bar Bar
Cristofer
2,3 Km
Corallo
2,3 Km
Bar
2,4 Km
Ristoranti Ristoranti
Ristoranti
1,3 Km
Birreria Red Mosquito
1,4 Km
1495 Restaurant
1,6 Km
Robe da matti
2,2 Km
Il Portone
2,4 Km
Mostra tutto

Caratteristiche

Rif.:
61159286
Piano:
Su più livelli di 3
Totale piani:
3
Terrazzi:
3
Camere da letto:
6
Arredamento:
Parziale
Mostra tutto
Prezzo Prezzo
€ 550.000
Rata mutuo Rata mutuo
€ 2.593 / mese
Spese annue Spese annue
€ 0
Proponi il tuo prezzoProponi il tuo prezzo
Immobile valutato con T·Valuta

Classe Energetica

E
E
E
E
E
E
E
E
E
Anno di costruzione:
1965
Riscaldamento:
Autonomo
Tipo impianto:
A radiatori
Tipo alimentazione:
Metano

Prezzo ridotto di €1 (4%%)

Ti interessa visionare l'immobile?

Fissa un appuntamento  Fissa un appuntamento

Richiedi informazioni

Clicca su Leggi per aprire l'informativa
* Questi campi sono obbligatori

Calcola il tuo mutuo

Semplice e senza impegno
Anticipo

( % )
Mutuo

( % )

pochi semplici passi

inserisci i tuoi dati
Questionario completato
Grazie per aver richiesto un appuntamento senza impegno con un nostro Consulente del Credito e Assicurativo.

Hai inserito correttamente tutti i dati necessari e a breve riceverai una e-mail con un link da convalidare per inviare i tuoi dati.
Affiliato
Agenzia Immobiliare Albinea Srl
Via Leonardo Da Vinci, 2 42020 Albinea (RE)

Il nostro staff


  • Andrea Cattabiani
    Collaboratore

  • Giovanni Paolucci
    Affiliato

  • Davide Piacenti
    Affiliato
Via Leonardo Da Vinci, 2 42020 Albinea (RE)
Zona: Scandiano-Albinea-Canali
Mostra su mappa
Orari: Lunedì - Venerdì: 9:00 - 13:00 / 15:00 - 19:45. Sabato: 9:00 - 13.00. Orari personalizzati: su appuntamento.
Affiliato
Agenzia Immobiliare Albinea Srl
Via Leonardo Da Vinci, 2 42020 Albinea (RE)

2026 Tecnocasa Franchising S.p.A. - P. IVA 08365160152 - Via Monte Bianco 60/A 20089 Rozzano (MI). Ogni agenzia ha un proprio titolare ed è autonoma. Privacy policy | Policy utilizzo | Cookie policy