Villa a schiera d'angolo in vendita

Vezzano Sul Crostolo, Via Prospero Martelli
€ 300.000
4 locali 4 locali
144 Mq 144 Mq
1 bagno 1 bagno

Villa a schiera d'angolo in vendita

Vezzano Sul Crostolo, Via Prospero Martelli

Descrizione annuncio

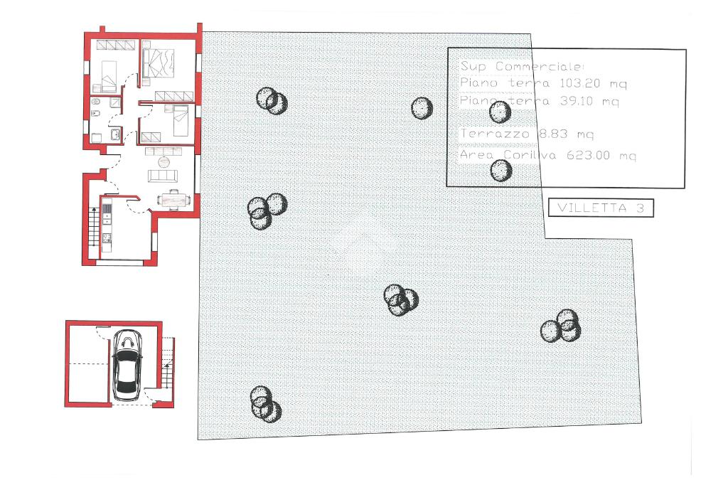
Proponiamo in vendita a Sedrio, Vezzano Sul Crostolo, nuove maisonette e villette tutte su un piano in classe A4 all'interno di Residence Esclusivo, composto da 2 o 3 camere e giardino privato.

Disponibili 8 soluzioni tra villette e maisonette di tutte le metrature, con composizioni diversificate e personalizzabili. Consegna nel 2026

Prezzi a partire da 280.000 Euro!

Per info sulle varie soluzioni progettate contattateci subito!

Mostra tutto

Nelle vicinanze

Trasporto pubblico Trasporto pubblico
Trasporto pubblico
500 m
Ricariche auto elettriche Ricariche auto elettriche
Conad Montecavolo | EnelX
2,8 Km
Supermercati Supermercati
Conad City
2,6 Km
Conad
2,8 Km
Negozi Negozi
SUPER DAY
2,8 Km
Negozi
3,0 Km
Bar Bar
Bio Bar
2,9 Km
Bar
2,9 Km
Ristoranti Ristoranti
La Locanda
1,1 Km
Osteria Al Pan Brusee
2,6 Km
Mostra tutto

Caratteristiche

Rif.:
61148468
Piano:
Su più livelli di 2
Totale piani:
2
Box:
1
Camere da letto:
3
Arredamento:
Assente
Mostra tutto
Prezzo Prezzo
€ 300.000
Rata mutuo Rata mutuo
€ 1.402 / mese
Spese annue Spese annue
€ 0
Proponi il tuo prezzoProponi il tuo prezzo

Classe Energetica

A4
A4
A4
A4
A4
A4
A4
A4
A4
EP invernale del fabbricato:
EP estiva del fabbricato:
Anno di costruzione:
2026
Riscaldamento:
Autonomo
Tipo impianto:
Ad aria
Tipo alimentazione:
Pannelli

Ti interessa visionare l'immobile?

Fissa un appuntamento  Fissa un appuntamento

Richiedi informazioni

Clicca su Leggi per aprire l'informativa
* Questi campi sono obbligatori

Calcola il tuo mutuo

Semplice e senza impegno
Anticipo

( % )
Mutuo

( % )

pochi semplici passi

inserisci i tuoi dati
Questionario completato
Grazie per aver richiesto un appuntamento senza impegno con un nostro Consulente del Credito e Assicurativo.

Hai inserito correttamente tutti i dati necessari e a breve riceverai una e-mail con un link da convalidare per inviare i tuoi dati.
Affiliato
Agenzia Immobiliare Albinea Srl
Via Leonardo Da Vinci, 2 42020 Albinea (RE)

Il nostro staff


  • Andrea Cattabiani
    Collaboratore

  • Giovanni Paolucci
    Affiliato

  • Davide Piacenti
    Affiliato
Via Leonardo Da Vinci, 2 42020 Albinea (RE)
Zona: Scandiano-Albinea-Canali
Mostra su mappa
Orari: Lunedì - Venerdì: 9:00 - 13:00 / 15:00 - 19:45. Sabato: 9:00 - 13.00. Orari personalizzati: su appuntamento.
Affiliato
Agenzia Immobiliare Albinea Srl
Via Leonardo Da Vinci, 2 42020 Albinea (RE)

2026 Tecnocasa Franchising S.p.A. - P. IVA 08365160152 - Via Monte Bianco 60/A 20089 Rozzano (MI). Ogni agenzia ha un proprio titolare ed è autonoma. Privacy policy | Policy utilizzo | Cookie policy